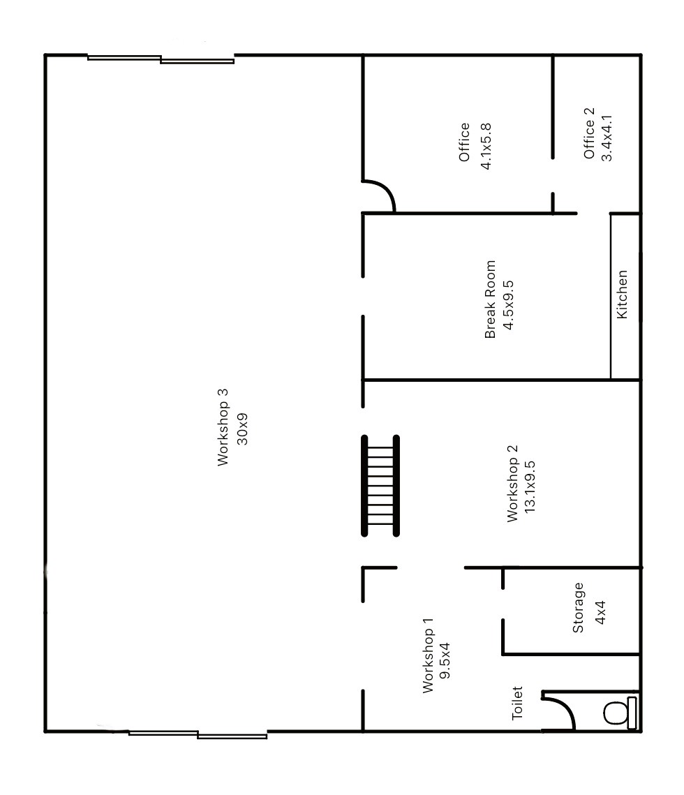
Unlock a total of 900m²* of versatile commercial space on Mackay’s city fringe.
Perfectly set up for workshops, offices, storage – or all three.
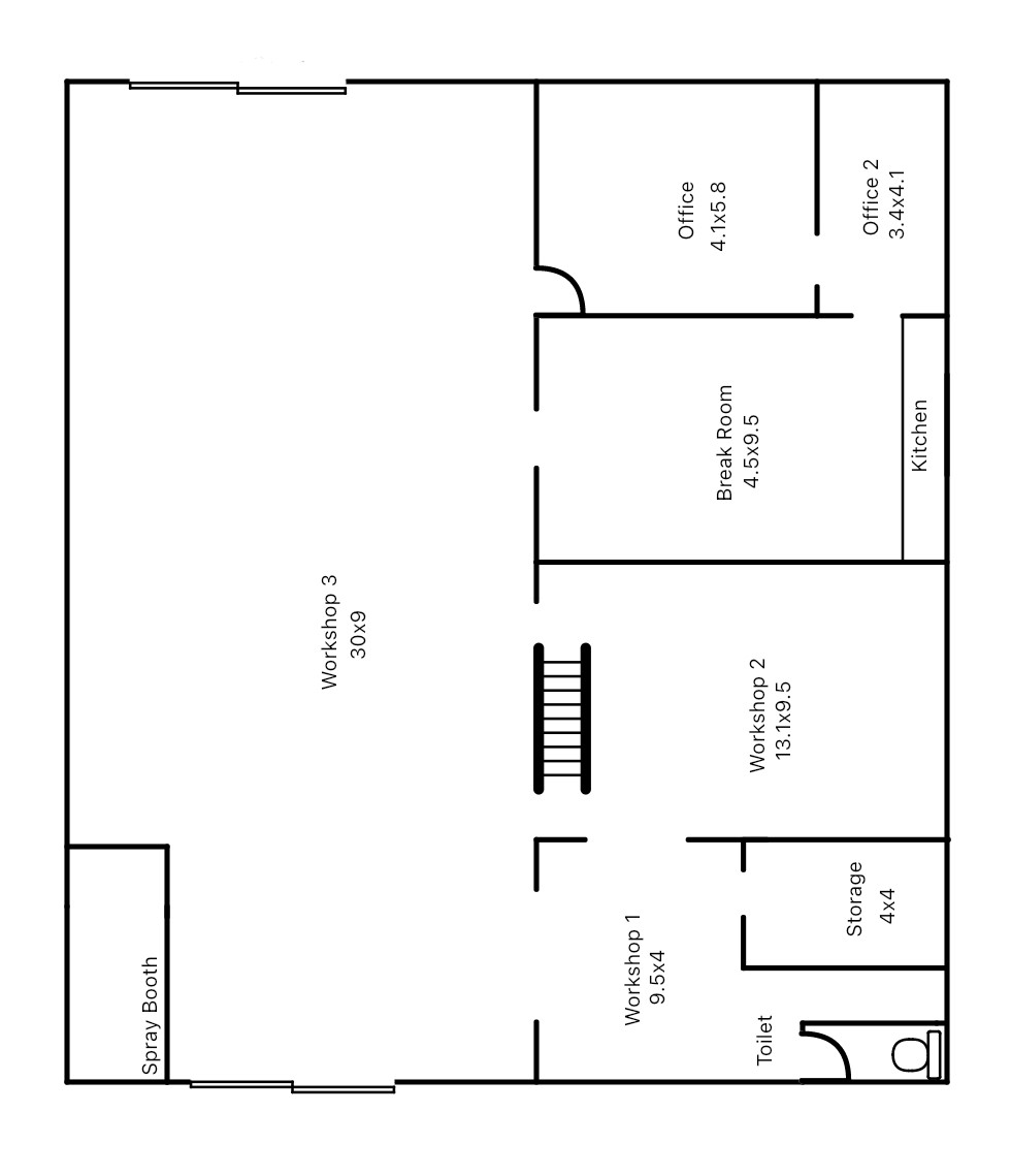
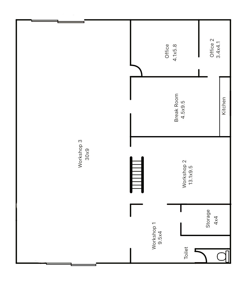
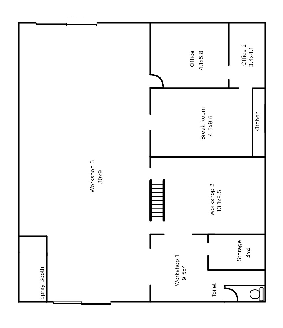
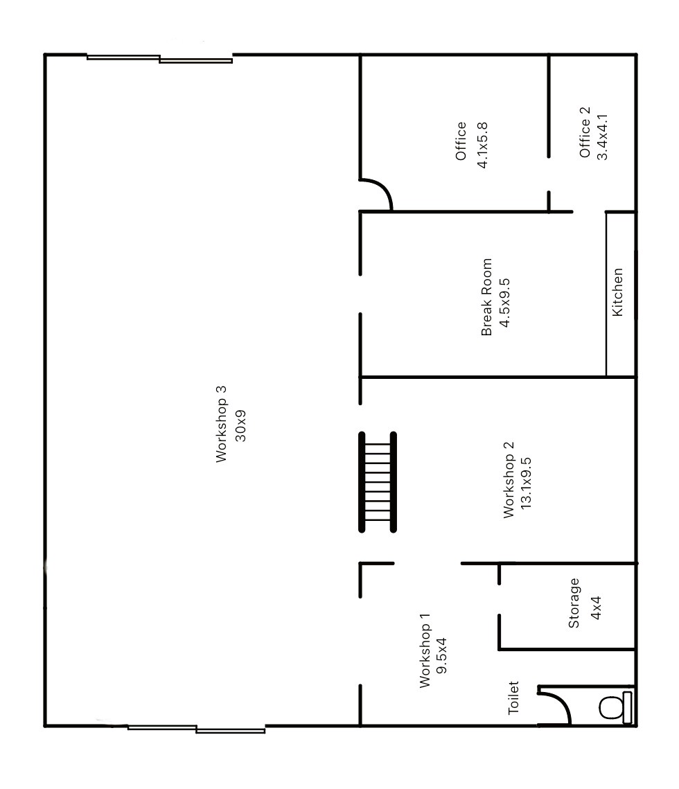
Features:
700m² Warehouse/Workshop:* High clearance, natural light, and room to move
200m²+ Office Space: Air-conditioned mezzanine + ground floor office
Flexible Storage: 138m²* mezzanine storage
Power & Ventilation: 3-phase power + commercial exhaust fan
Drive-Through 2 street Access: Front and rear for smooth logistics
Parking Made Easy: Onsite + street parking, plus secure car storage
Special Touches: Wash/contaminate area with pit, underground tank & Clearmake filtration
Zoning Flexibility: Local Centre – ideal for multiple commercial activities with onsite parking
Grow your business in a space that’s ready to roll. Enquire today.
*Approximate
Contact Chris Bonanno at Gardian Commercial Real Estate for an inspection.
The Agent does not give any warranty as to errors or omissions, if any, in these particulars. The provided information from the Vendor can be deemed reliable but not accurate. Any persons interested in the property should conduct their own research.
25 February 2026
Land Size 810 Square Mtr
