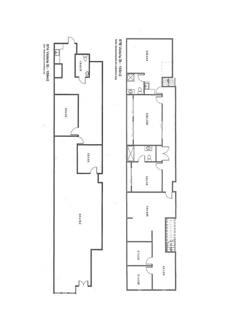
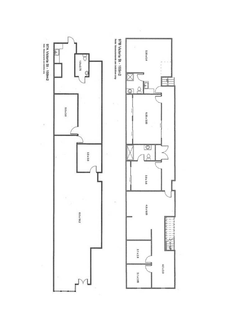
This property sale listing highlights a versatile investment opportunity in Mackay’s City Centre. With ground and first-floor spaces ideal for retail or professional office use, the property includes the following features:
• Total Land Area: 239m²*
• Total Lettable Area: 324m²*
• Onsite Car Parks: 2
GROUND FLOOR Vacant (159m²)*
• Frontage: Prime visibility on Victoria Street
• Amenities: Kitchenette, wheelchair access, and toilet facilities
• Access: Street and rear parking
• Previous Lease Value: $36,772 per annum*
LEVEL 1 Leased (165m²)*
• Layout: Multiple offices with kitchenette, showers, and toilet facilities
• Current Lease Value: $25,000 per annum*
Additional Highlights
• Ground floor accessibility features and facilities cater to a wide range of business needs, while Level 1’s multiple offices make it suitable for professional tenants. The dual-tenancy setup offers flexibility for investors seeking rental income from both floors.
Contact:
Chris Bonanno at Gardian Commercial Real Estate for more information.
Phone: 040877588
Email: chris@gardian.com.au
* Approximate
Disclaimer: The Agent does not give any warranty as to errors or omissions, if any, in these particulars. The provided information from the Vendor can be deemed reliable but not accurate. Any persons interested in the property should conduct their own research.
26 December 2025
Land Size 239 Square Mtr
