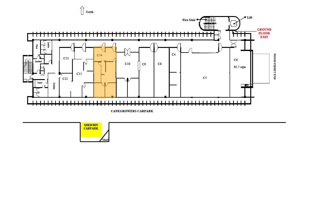
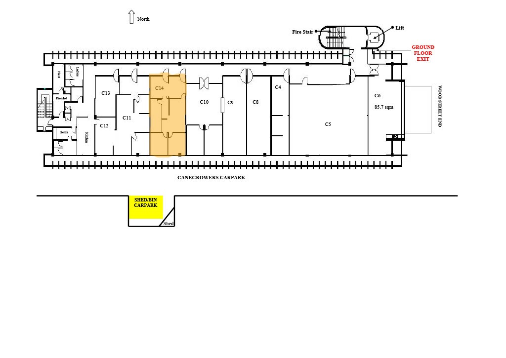
Gardian are pleased to present 22m2* (C12), 60m2* (C8) & 89m2* (C14) of quality corporate space for lease on the top level of Mackay's Canegrowers Building.
Conveniently located in the Mackay City Precinct with views over the city, onsite parking and natural lighting.
Features:
- Open plan 22m2*, 60m2* & 89m2* multiple offices
- Access to shared kitchen and disabled toilets.
- Natural lighting
- Located on the top floor with city views.
- Lift and stair access
- Signage opportunities
- Inclusive gross lease
- Onsite parking available by negotiation
Contact Chris Bonanno at Gardian Commercial Real Estate for an inspection.
The Agent does not give any warranty as to errors or omissions, if any, in these particulars. The provided information from the Vendor can be deemed reliable but not accurate. Any persons interested in the property should conduct their own research.
25 December 2025
Land Size 4,364 Square Mtr
