Gardian are pleased to present for lease this quality, purpose-built industrial facility ideally positioned in the heart of Paget. Designed for efficient industrial operations, this well-equipped property offers a large concrete hardstand area, high clearance access, and a range of modern features ready to support heavy-duty workshop or engineering use.
Equipped with a near-new 6 tonne overhead crane*, 3-phase power, and a comprehensive airline system with compressor, this facility provides a turnkey solution for industrial tenants seeking functionality and convenience in a prime Mackay location.
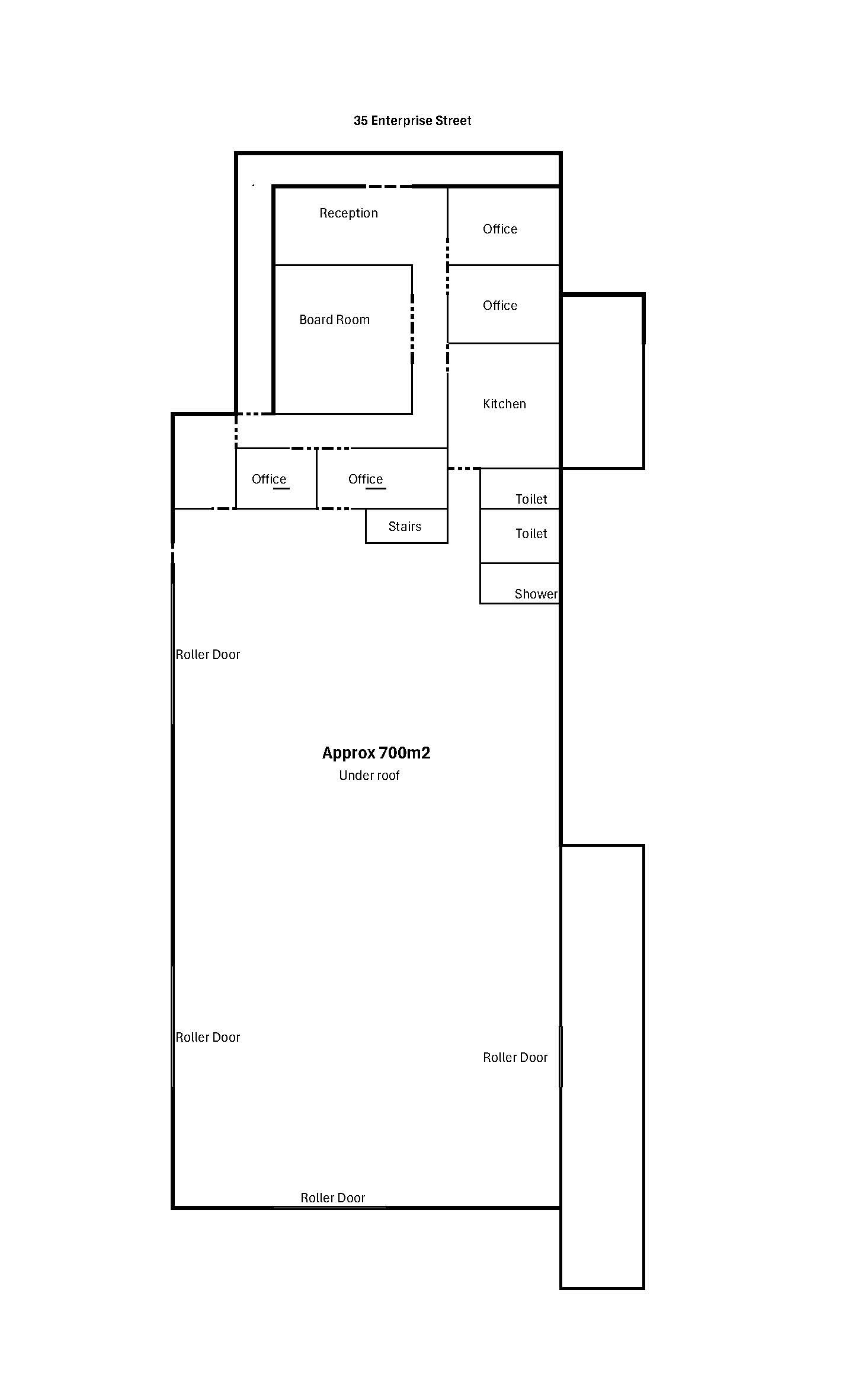
Property Features:
- 1,644m²* total land area
- 581m²* total building area
- 132m²* ground-level office and amenities
- 444m²* workshop area
- 700m2* under roof
- 60m2* Mezzanine storage & office space
- Zoned High Impact Industry
- Expansive concrete hardstand for vehicle and equipment movement
Recent Upgrades Include:
Upgraded airline system (internal & external) with compressor
LED high bay lighting throughout
Complete data system rewire
Near-new 6T overhead crane*
3 x 4.5m* wide x 5m high electric roller doors
All-concrete hardstand laydown area
This modern, high-spec facility is ready for immediate occupancy and offers exceptional value in one of Mackay’s most established industrial precincts.
*Approximate
Available for inspection by appointment only.
By Negotiation
Contact agent: Chris Bonanno
Gardian Commercial Real Estate Sales & Leasing
Phone 0408775788
Email: chris@gardian.com.au
Disclaimer: All information contained herein is gathered from sources we believe to be reliable. However, we cannot guarantee its accuracy and interested persons should rely on their own enquiries.
23 February 2026
Land Size 1,644 Square Mtr
