Conveniently located in the heart of Paget, this versatile industrial property is ideal for workshop and warehouse users, offering dual street access, large roller door entry, and high-clearance space suited to a range of industrial operations.
Property Highlights:
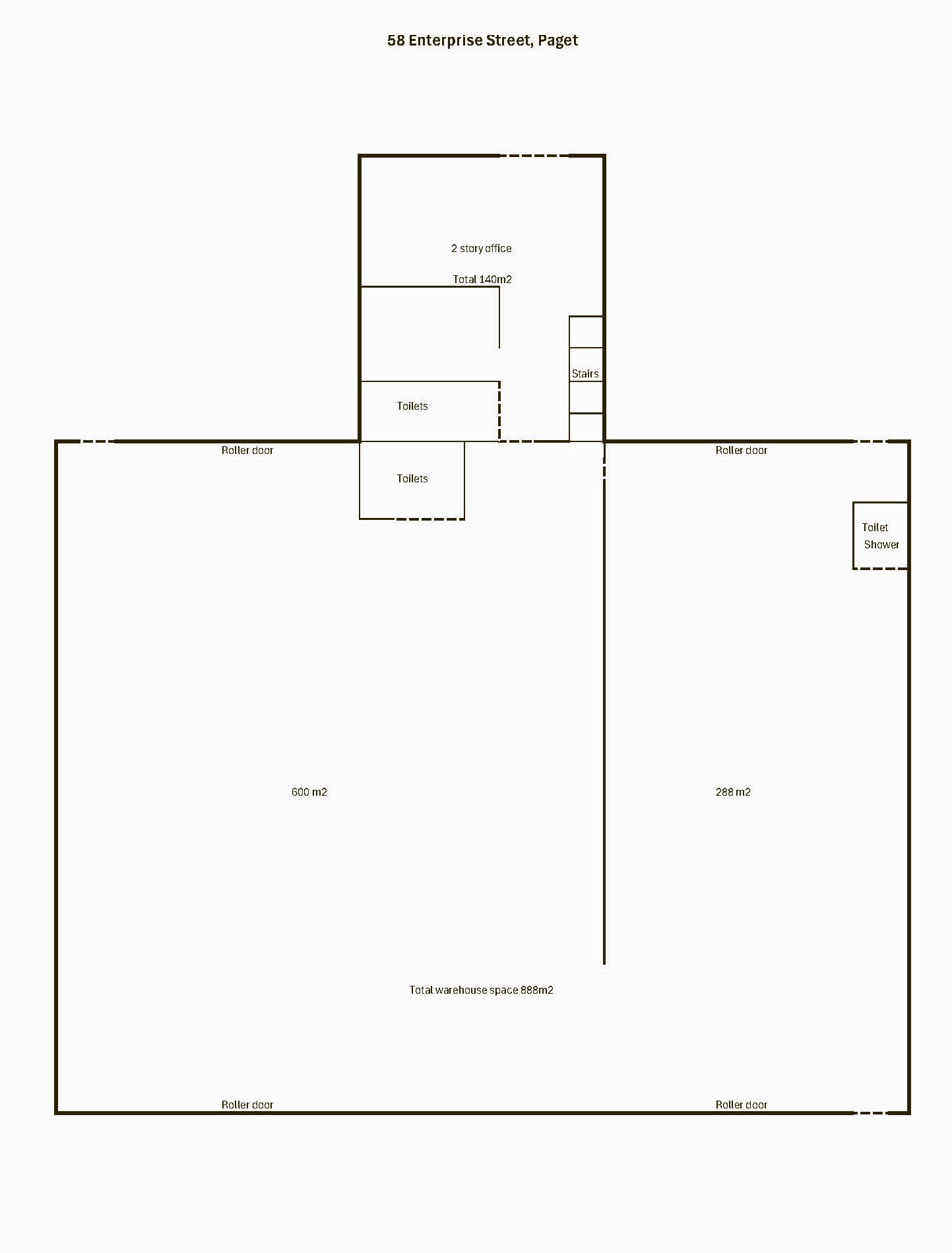
- Total site area: 1,572m²*
- Total enclosed building area: 1,028m²*
- Workshop/warehouse area: 888m²*
- Option to split into 600m² and 288m²** tenancies
- 10-tonne overhead crane servicing the 600m² area
- Two-level office space: 140m²*
- Fully fenced front and rear
- Minimum 7 on-site car parks
- High-clearance warehouse with two loading points
- Zoned High Impact Industry
- Competitive rental rates
This property presents a strong opportunity for businesses seeking functional industrial space in Mackay’s premier industrial precinct.
For inspections or further information, contact
Chris Bonanno
Gardian Commercial Real Estate Mackay
chris@gardian.com.au
*Approximate areas
Disclaimer:
The Agent does not warrant the accuracy of the information provided and accepts no responsibility for errors or omissions. Interested parties should rely on their own enquiries and investigations.
18 February 2026
Land Size 1,572 Square Mtr
