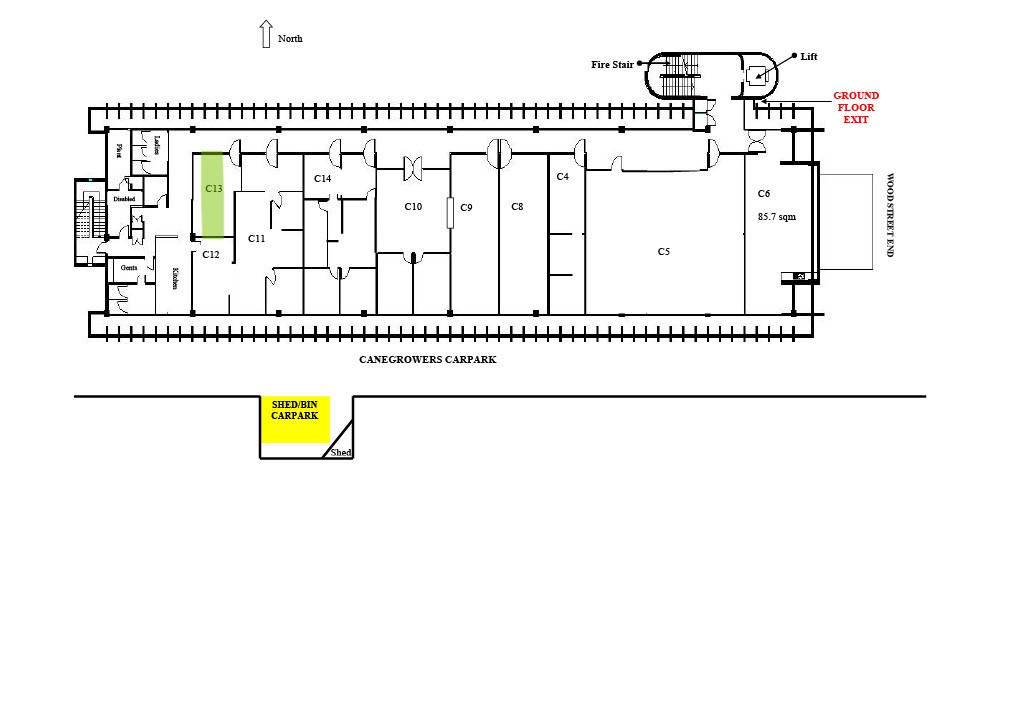
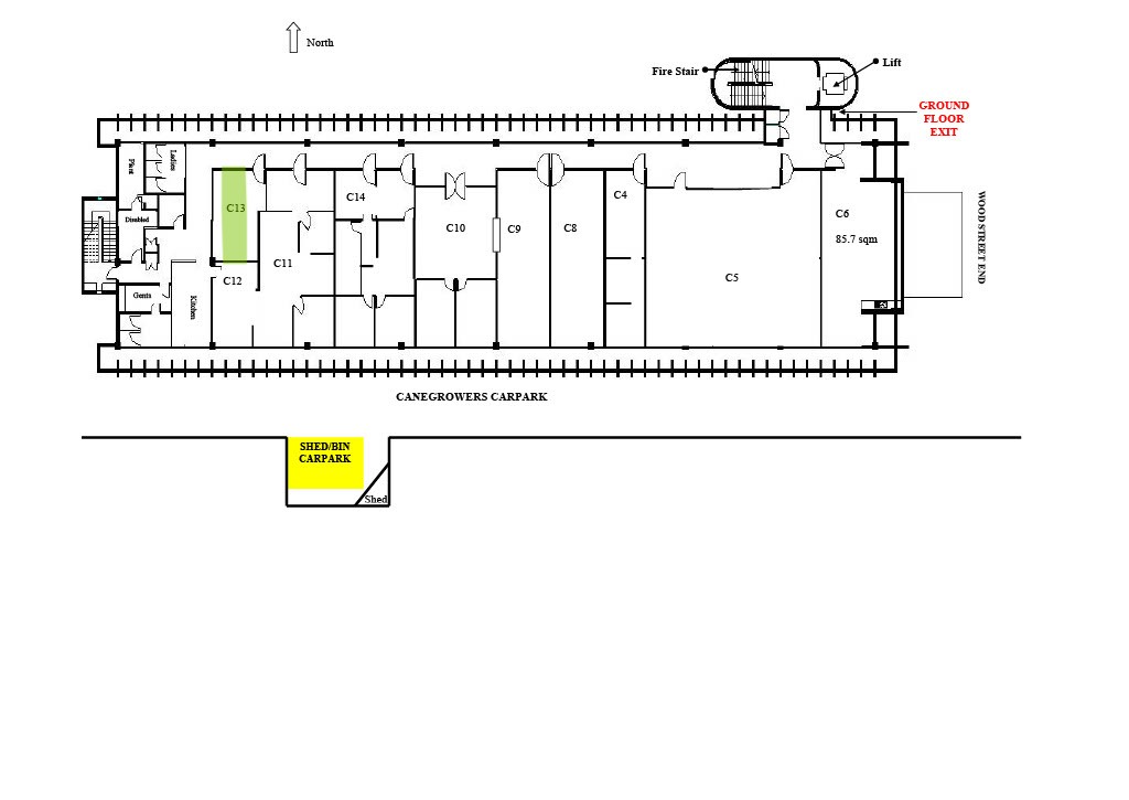
Discover an open-plan, 29m² office space in the Cangrowers Building, 120 Wood Street, Mackay.
Elevated with city views and abundant natural light, this space offers on-site parking (by application) and is just moments from the CBD.
Enjoy shared amenities, including wheelchair-accessible toilet & shower, lift access, and a communal kitchen overlooking the city.
Ideal for professionals seeking convenience and comfort.
Key Features:
• 29m²* open-plan office
• On-site parking available
• Close to city center, walking distance
• Shared amenities and wheelchair accessible
*Approximate
Contact Chris Bonanno for an inspection.
